
Ecco Tiny
Habitaciones y oficinas modulares
Soluciones habitacionales pensados para resistir cualquier condición climática.
Módulos Ecco Tiny
Conoce nuestra propuesta de habitación modular y sustentable
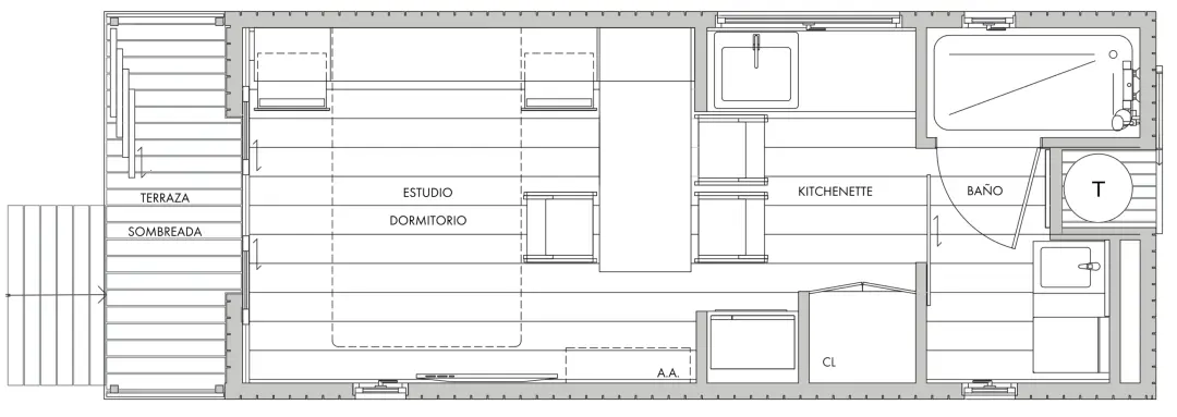
17.46m² de innovación
Conoce nuestra propuesta de habitación modular y sustentable

Arquitectura Sustentable
- 1,352 kilos de materiales plásticos reciclados.
- Artefactos con reuso de H2O.
- Bajo mantenimiento exterior.
- No interviene el suelo.
Arquitectura Bioclimática
- Optimización de orientación.
- Techo ventilado.
- Espacio intermedio de acceso ventilado.
Pensados para resistir todo tipo de condición climática
Te invitamos a idear grandes proyectos
Timberecco es tu aliado estratégico en proyectos de arquitectura, ingeniería y construcción. Te ayudamos a desarrollar tus proyectos de Economía Circular y cumplir tus metas de sustentabilidad.



